
Căn hộ của một chàng nghệ sĩ người Đan Mạch được sửa lại hầu như hoàn toàn, do chú nhân muốn có không gian thoải mái, không bị ngăn chia bởi các bức tường có từ trước.
Chính vì vậy, khu vực phân vùng trong căn hộ đã bị phá hủy, tầng lửng được tháo dỡ nhiều tâm ván cũ, bức tường thạch cao cũng biến mất. Không gian sống thoáng đãng khi trần nhà cao ba mét, nguồn ánh sáng tự nhiên đi qua 3 chiếc cửa sổ lớn quả thực rất lý tưởng.
  
 
  
 
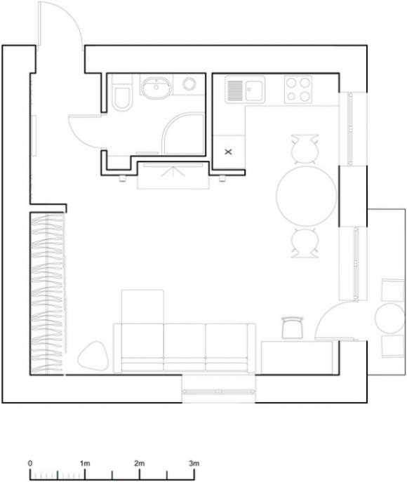
Chìa khóa chính cho sự thành công của dự án này là việc quy hoạch rõ ràng về không gian và cũng chính kế hoạch đó mà căn hộ tận dụng được tối đa từng mét vuông sử dụng trong khi vẫn giữ một không gian mở.
Màu sắc chính của căn hộ là nam tính đã trở nên ấm áp hơn, màu xám trở thanfhneen trung lập giữa đồ nội thất bằng gỗ và màu xám đậm.
  
 
  
 
 
 Phòng tắm bé tiết kiệm không gian 
  

 Màu xám đậm trên tường tivi trung hòa với các đồ nội thất bởi sắc xám nhạt 
 
 Ban công nhỏ ấm áp  
Quy hoạch tổng thể:
  
 
An Nhiên (Depplus.vn/MASK)
 Tin được quan tâm
        Tin được quan tâm
     Tin cùng mục
        Tin cùng mục
     Tin mới cập nhật
        
            Tin mới cập nhật